The Custom Home Building Process in Central Texas: What to Expect From Start to Finish
A custom home built in Central Texas, where thoughtful planning and quality construction come together from the ground up.
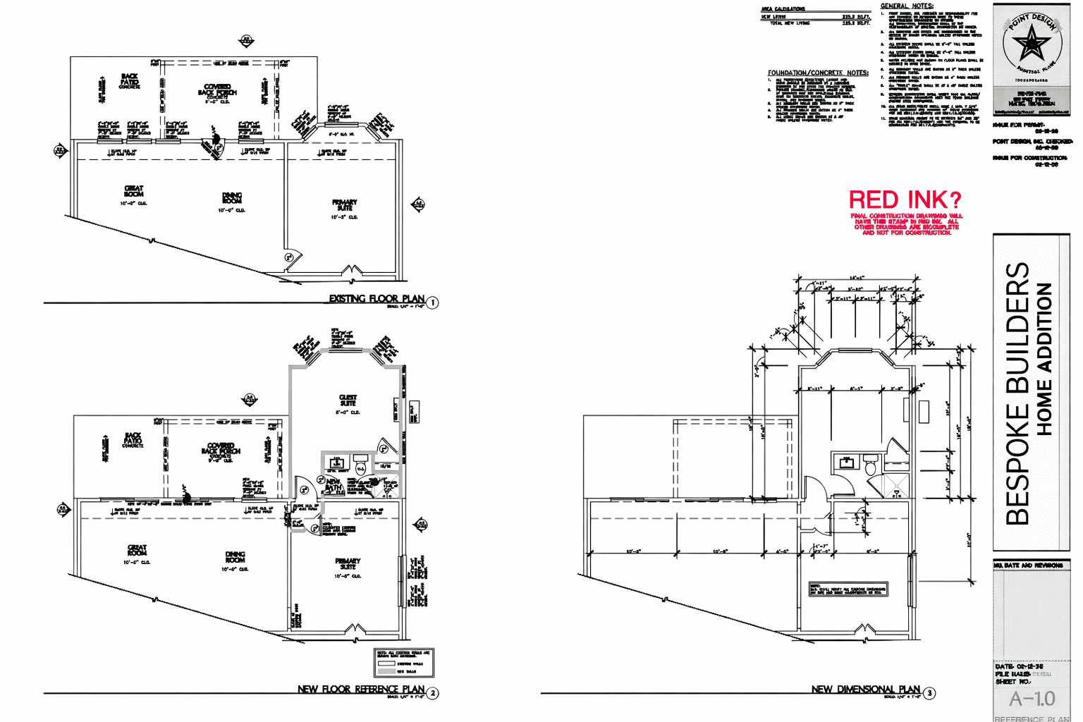
What Homeowners Should Know Before Adding Square Footage in Williamson County
Home additions in Williamson County require more than extra square footage. From lot coverage limits and HOA approvals to structural tie-ins and utility planning, here is what homeowners in Georgetown, Liberty Hill, and surrounding areas need to know before starting an addition.
Why Cheap Quotes Usually Cost More In The End
The cheapest remodel quote often looks like the safest choice — until the project starts. Missing details, vague scopes, and unrealistic labor pricing are how “great deals” quietly turn into budget overruns, delays, and frustration. In this post, we break down why low bids usually cost more in the end and how to spot red flags before you sign anything.
How Our 30-Day and 1-Year Walkthrough System Protects Homeowners Long After the Job Is Done
Learn how our 30-day and 1-year walkthrough process protects your investment, catches issues early, and keeps your home performing at its best.
How Much Does a Home Remodel Really Cost in Central Texas?
Curious what a remodel really costs in Central Texas? Here’s a clear breakdown of realistic pricing for kitchens, bathrooms, outdoor living spaces, and whole-home renovations based on actual 2025 market conditions.
Building the Perfect Texas Outdoor Living Space: Design Tips That Last
Transform your backyard into a year-round retreat. Discover how Bespoke Builders designs and builds custom outdoor living spaces—from covered patios to composite decks and outdoor kitchens—that combine luxury, comfort, and lasting durability for the Texas lifestyle.
The Blue Board Difference: What Builders Don’t Tell You
The difference between a good build and a great one is often hidden in the details. Learn why the bottom plate, and that distinct blue lumber, can make all the difference in the longevity and quality of your home.
